Extra
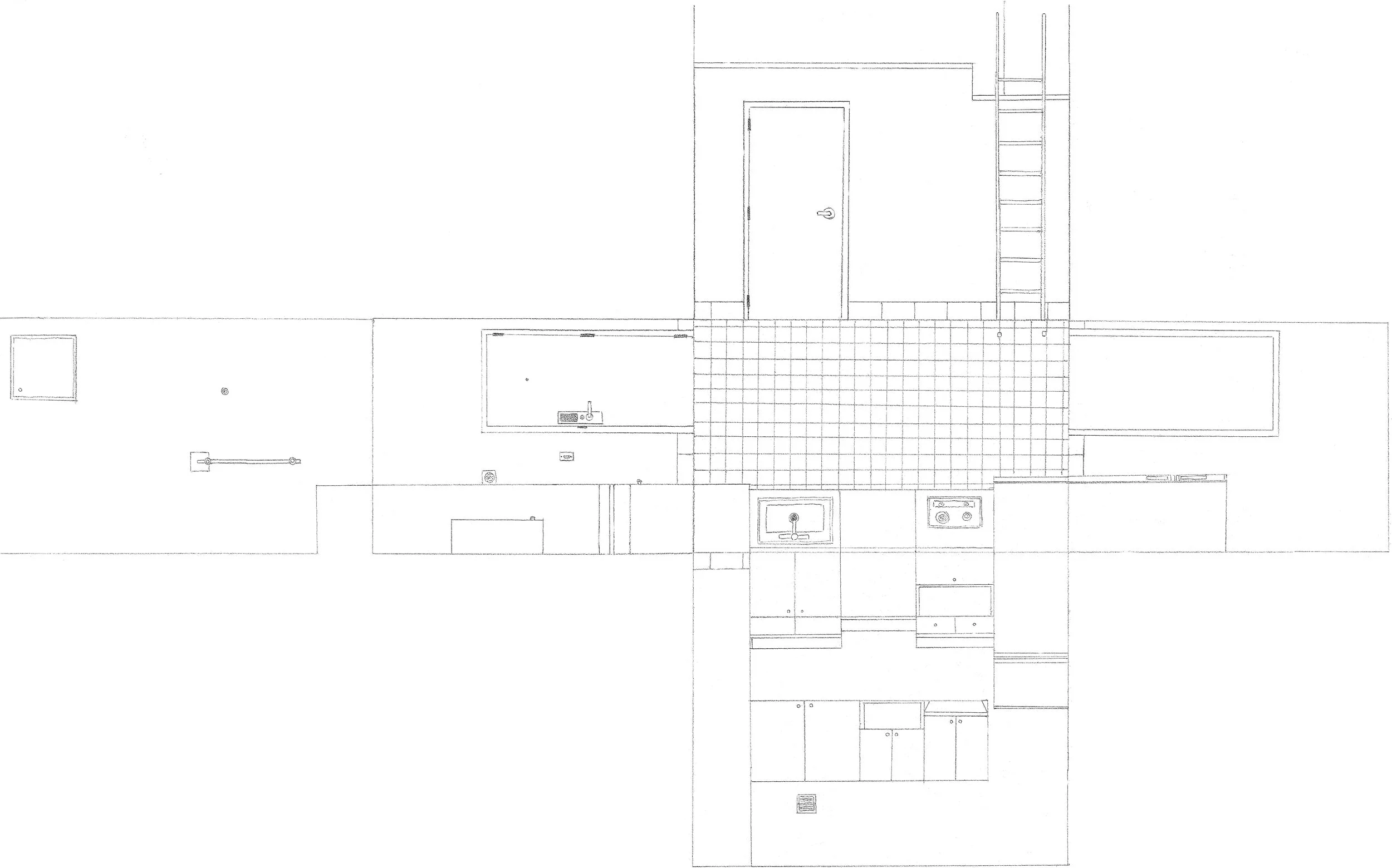
Exploded Drawing of 162 North State Street Dorm Kitchen (3/12/2024)
Sullivan Classroom Wooden Model (10/23/2024)
Exploded Drawing of 162 North State Street Dorm Kitchen (3/12/2024)
Sullivan Classroom Wooden Model (10/23/2024)